Prichard Hall
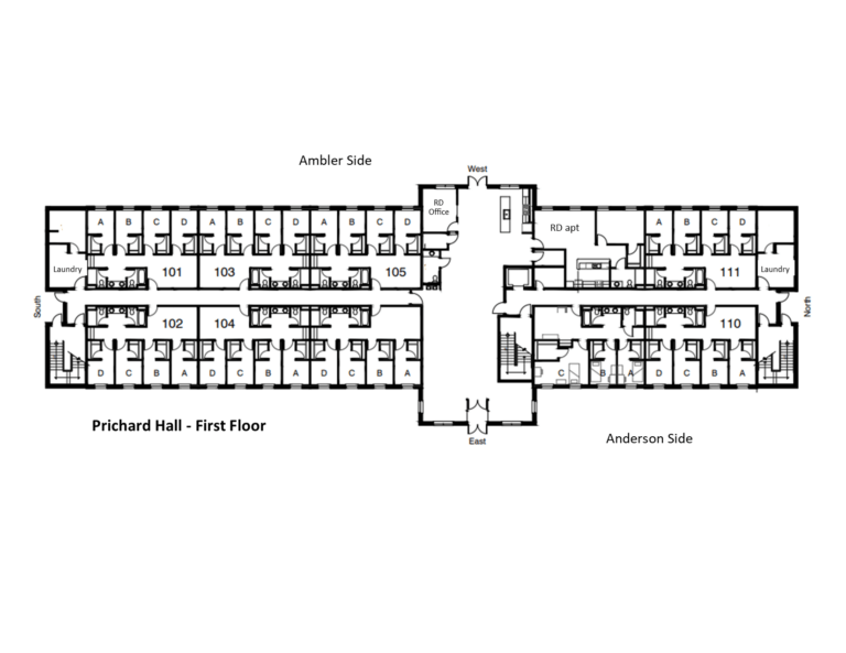
The 164 bed Prichard Hall is the newest residential community on campus containing 42 student living suites. This facility is designed to a be space that offers both the privacy of individual bedrooms and the community of common living areas for both small and large group fellowship. The staffing, consisting of one live-in Resident Director, Assistant Resident Director, and eight Resident Assistants, serve to provide both mentorship and residential support for the ladies who call Prichard Hall home.
Designed beginning with a blank sheet of paper and intent to provide a space that allows for individual and shared living and learning experiences, Prichard Hall employs a new design that reflects some of the traits of traditional college dorm life while incorporating elements of apartment life that our students are seeking. Each suite contains 4 bedrooms, each with a walk-in closet, desk, chair, dresser, and twin XL (extra-long) bed. Additionally, each suite boasts of 2 bathrooms and a common living room furnished with a love seat, and TV stand for the 4 residents. Also, layers of secured doors exist in the building to limit access only to residents, suitemates, and individual residents as it relates to each space.

With more refined first floor lobby providing spaces for watching TV, studying, playing games, and even cooking a nice dinner, this common area is designed to allow for the co-ed fellowship of our students while also maintaining privacy and safe living space exclusively for our female residential students behind secure credentialed doors accessed only be the residents. Behind this secured access one will find enclosed hallways, stairs, and an elevator to move about throughout the building, along with laundry facilities at the end of each hallway and on every floor. Finally, Prichard Hall offers more casual and also secure lobbies on the 2nd, 3rd, and 4th floor providing furniture and space for watch parties, game nights, cram sessions, and Bible studies.
Prichard Hall is a safe and comfortable residential community intent on meeting the needs of our students today while supporting their growth towards the next step in life.